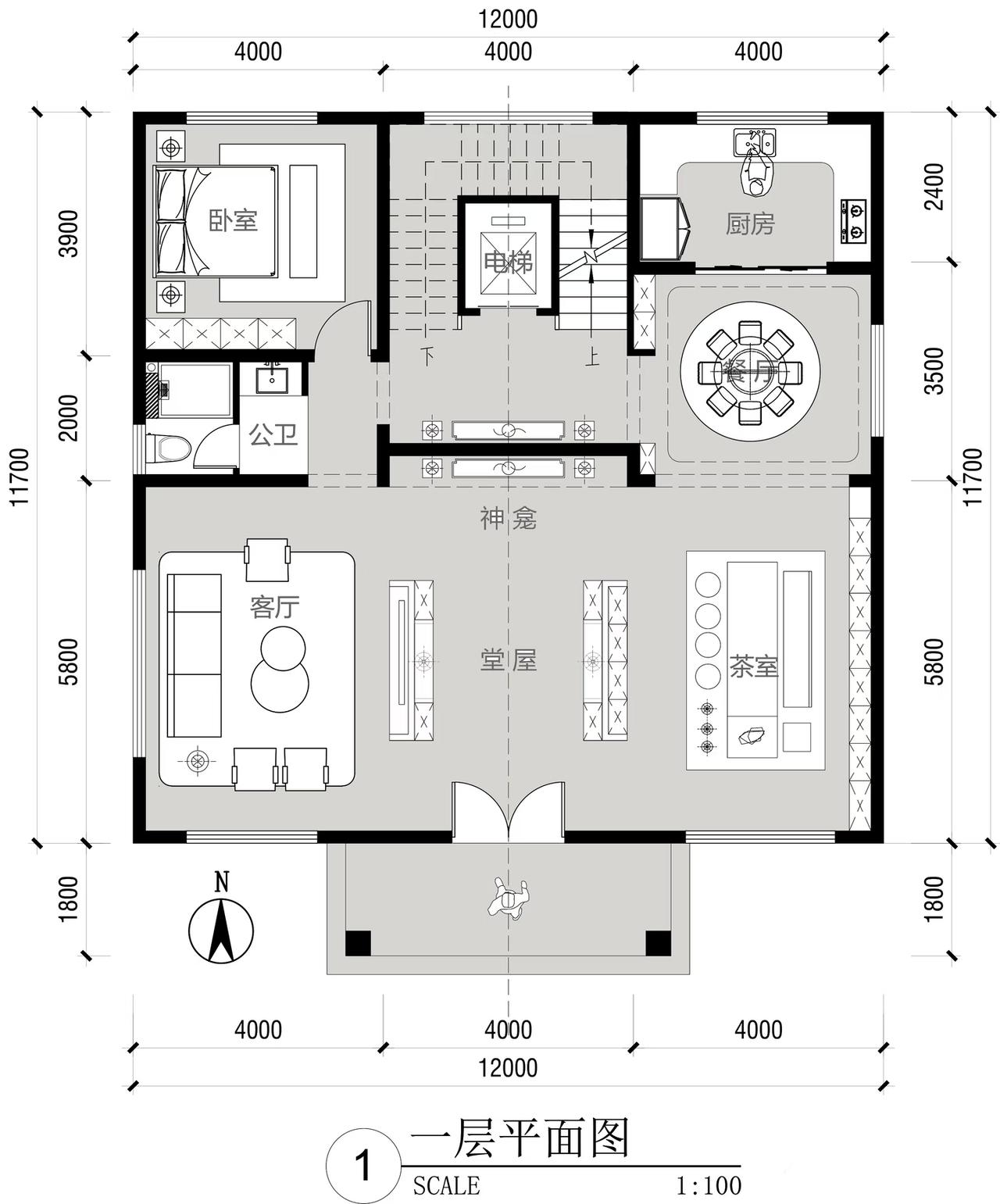
农村自建房需要专业设计吗? 作为专业设计师我给你几点建议。 农村自建房找专业设计,区别还是挺大的。简单来说,不找设计就像凭感觉和包工头以往经验“摸着石头过河”边做边想,边想边改,会出现以下问题: 1、完工时间、完全没有确定不了。 2、采购的建筑装饰材料,由于没有图纸不知道采购数量,都是大概预估,多了浪费,少了又增加运输成本。 3、成本造价无法计算,也完全控制不了,没有图纸,包工头施工队无法精准计算数量,只能预估一个总费用,这个费用会随着建造过程不断增加,好像一个无底洞一样。 4、各空间布局不确定,造成室内空间不合理,大小不一出现浪费,行走动线交叉容易发生重叠及碰撞,房间过大,客厅偏小,忘记预留卫生间、忘记预留窗户造成黑房、门洞尺寸不一。不符合人体工程学,出现反人类设计等等。 5、外立面颜色材料撞色,与周围建筑及环境格格不入,特别另类。窗户设置位置及窗户大小比例不协调。 6、给排水管设置重复、化粪池、烟管设置不合理,或者直接漏项,导致日后无法补救等。 7、结构安全、基础安全完全凭感觉施工,严重倾斜开裂,严重完工即成危房。 不找设计边想边改,容易造成材料浪费和结构安全隐患。专业设计会提供详细的施工图,并精确计算材料用量,施工队能看懂照做,既省心省钱,结构也更安全。 以上是我从一个专业角度跟广大业主的理性分析,有可能不全面,还请专业人士或踩坑的业主补充分享。

