老涛资讯网
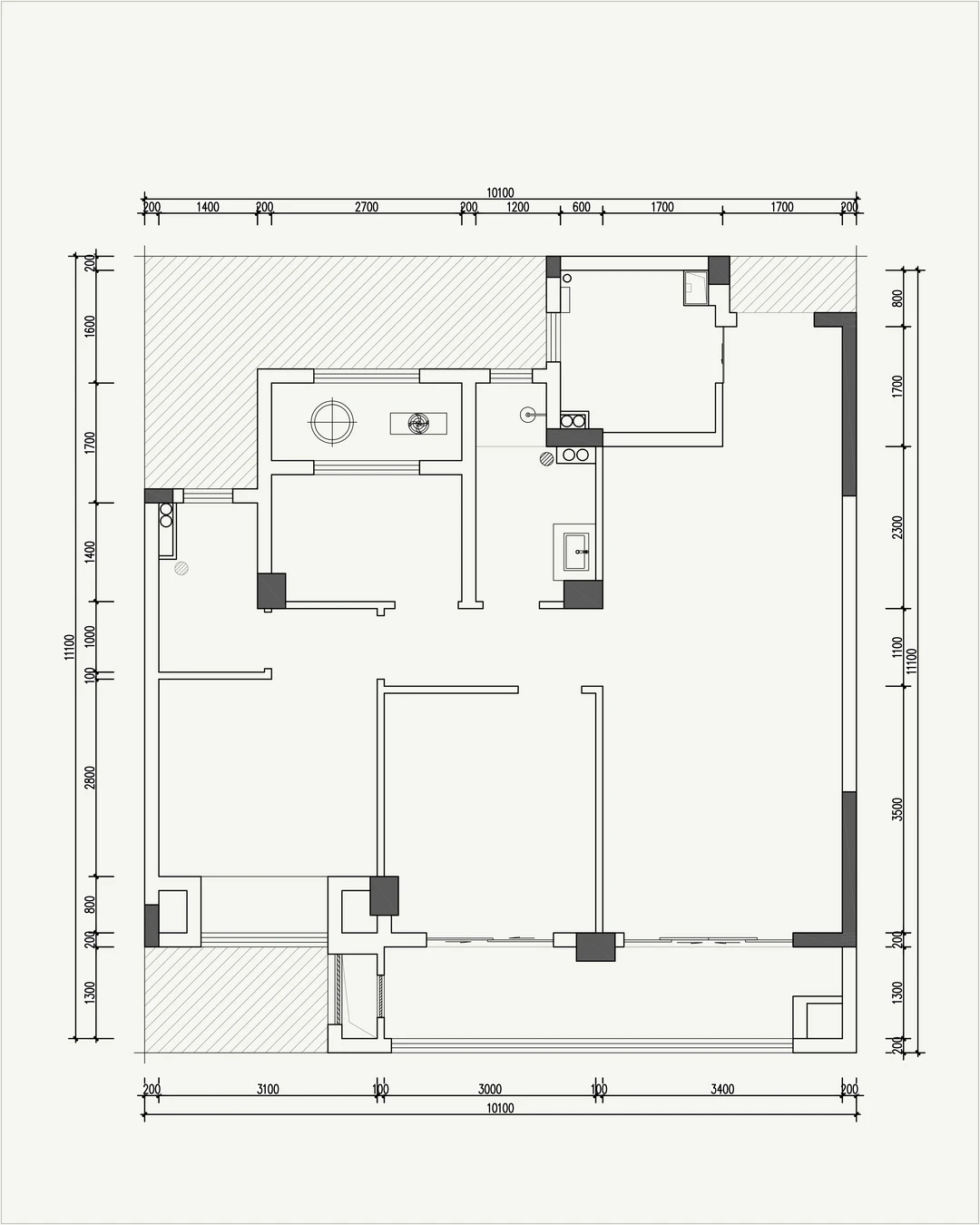
100㎡经典户型改造|三分离真没必要!
设计师人厘米酱
2026-01-29 18:02:01
厘米户型优化 户型优化 平面布局 小户型装修
0
阅读:2
猜你喜欢
这种奇葩户型的房子,你敢买吗?
【5评论】【1点赞】
天津老张
2026-01-26
做为养老房,390㎡别墅是顶级的,不管是布局,还是动线,体会到它的巧思和悠闲!
【1评论】
别墅
隔断
客厅
书房
里二户型改造
2026-01-27
三观不稀碎的房子,384㎡最大的魅力是四叶草,布局很机智,最大的缺陷,四联过道,
【1点赞】
里二户型改造
2026-01-18
大洄游,小开放,105㎡一个后空翻,变成通透大逃亡,布局卡点太绝了,一打二拆,
收纳
里土包子设计师
2026-01-27
给大平层上史诗级一课,463㎡整出三套房,带空中花园的房子!它的辨识度十分
【1点赞】
里二户型改造
2026-01-18
75m²的小家也挺好~三室一厅~
家居美图收集
2026-01-19
设计师人厘米酱
感谢大家的关注
作者最新文章
1
96 ㎡经典户型改造|双台盆设计|三分离
2
85㎡经典户型改造|一个卫生间也可以四分离
3
86㎡经典户型改造|三房一卫,三分离更合适
4
精装房局部改造|树屋儿童套房设计
5
经典户型改造,家有两宝的可以参考
6
110㎡经典户型改造|电竞房、衣帽间
7
100㎡经典户型改造|小户型也能有大横厅
8
86㎡经典户型改造|一个人住三居室不过分吧
9
80㎡经典户型改造|独享三居室,要🛁
10
99㎡经典户型改造|衣帽间、书房通通都要!
热门分类
推荐
热榜
军事
NBA
体育
社会
明星八卦
娱乐
财经
科技
汽车
历史
国际
游戏
动漫
公益
搞笑
商业
互联网
数码
国际足球
房产
家居
时尚
科学探索
职场
育儿
股票
教育
影视
情感
热点
中国军情
武器
中国南海
中国足球
亚洲杯
科比
综合体育
CBA
投资
大咖秀
外汇
创业
风口
SUV
豪车
概念车
优惠
新能源
美国
欧洲
朝日韩
俄罗斯
孕期
街拍
婚姻
正能量
家居
TOP
1
TheCapiton🐆ootd风格大赏新城事
2
有山有水,这算不算风水宝地?
3
珠宝柜姐23
4
这家业主,是什么样的人?
5
现在的业主真把房子当自己家了。
6
不得不说,这颜值在农村里,算得上天花板了吧?
7
这应该是农村自建房的天花板了吧
8
这居然是江疏影!!!风格转变好大啊!
9
见识一下,两千万有多少,原来放家里不显多,客厅两块大瓷砖占地轻松放下。再看后面这
10
不会扭系列自嗨模式开启随性摇摆室内
家居
最新文章
1
不得不说,这颜值在农村里,算得上天花板了吧?
2
董洁家的桌子中间竟然有条缝,这是什么设计?
3
你看,220㎡证明,努力在天赋面前一文不值,没有承重墙,同样的大平层,创新出现象
4
甜美粉嫩少女风,卧室自拍美照分享!卧室治愈美照温柔卧室自拍休闲卧室自拍卧室
5
晨光里的轻舒展清晨的柔光漫过窗沿,在浅米色的墙面上晕开温柔的弧度。我换上宽
6
西装控气场全开
7
我直接看懵了!重庆这些房子修得也太有个性了
8
好样的,206㎡不绕弯子,从某种意义上,可以说它是,真实生活的回归,相当于大平
9
呆呆爆火后首次直播,我注意到两个细节,第一个是她直播后面的墙壁非常新,包
10
南方人第一次见北方人烤阳台。。。我直接笑到拍大腿!这哪是吃烧烤?明明