老涛资讯网
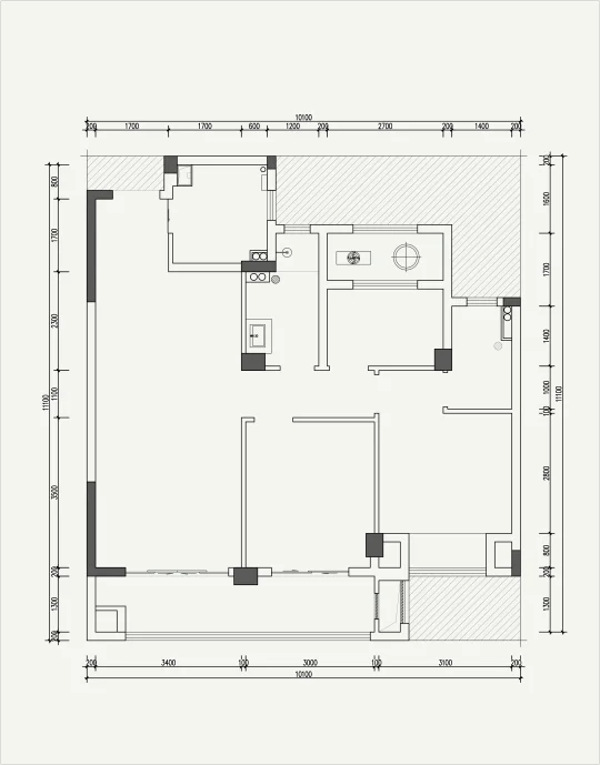
87㎡经典户型改造,想看三分离!
设计师人厘米酱
2025-11-18 00:08:40
想看自己户型能不能做三分离,不建议! 还是做了一版! 你觉得哪版更加实用!
0
阅读:90
设计师人厘米酱
感谢大家的关注
作者最新文章
1
去客厅化改造|我家真香了!
2
砸墙做开合厨房+岛台!三居真香了!
3
🔥爆改三居!通透厨房+岛台C位+亲子客厅
4
86㎡三房神操作!两卫改三分离,早高峰解放!
5
🔥79㎡三房爆改两房!四分离卫浴+梦中情厨水
6
🔥「88㎡三居爆改!主卧套房+双儿童房+岛台厨
7
户型改造|超大横厅|知识岛屿,重塑生活核心
8
抱着可以做大横厅买的房,结果收房时……
9
社交达人之家!大横厅整合西厨岛台+派对模式
10
经典户型改造/如何在一个卫生间做四分离
热门分类
推荐
热榜
军事
NBA
体育
社会
明星八卦
娱乐
财经
科技
汽车
历史
国际
游戏
动漫
公益
搞笑
商业
互联网
数码
国际足球
房产
家居
时尚
科学探索
职场
育儿
股票
教育
影视
情感
热点
中国军情
武器
中国南海
中国足球
亚洲杯
科比
综合体育
CBA
投资
大咖秀
外汇
创业
风口
SUV
豪车
概念车
优惠
新能源
美国
欧洲
朝日韩
俄罗斯
孕期
街拍
婚姻
正能量
家居
TOP
1
不懂就问为什么楼梯不走要爬窗口
2
这彩礼是普通家庭的天花板了吧
3
23年前的桑塔纳,那是属于天花板的生活!
4
邻居阳台晒腊肉,搞得楼下全是油怎么办?
5
这是啥设计实在看不懂
6
姐感🖤ootd风格大赏新城事
7
不觉得我的娃娃沙发垫很配吗,居家博主
8
好一个装修!这算不算此地无银三百两?
9
装修公司喊我验收,这个咋整
10
终于理解了那句,装修不能找熟人10w就装成这样…
家居
最新文章
1
以前总觉得窗帘每年都得洗一次,不然多脏啊!结果跟一个窗帘店老板聊天,人家直接说
2
好一个装修!这算不算此地无银三百两?
3
巴西一位叫若昂的71岁男子,梦到陌生人对他说:你家厨房地板的岩石下面有黄金。若
4
宝子们啊,在阳台吹风呢。
5
我问了楼下开了十五年窗帘店的老张,他说现在人一到年底就扛着窗帘去干洗,结果送来修
6
不觉得我的娃娃沙发垫很配吗,居家博主
7
二选一,你选哪个柜子?
8
小区顶楼要是有这样子的装修,给八百万也不卖
9
梅婷在北京顺义那套估价八千万的别墅,网上光说装修多高级、朋友来得多热闹,其实最让
10
这套房子的设计,你觉得哪里需要改善?