老涛资讯网
🔥「88㎡三居爆改!主卧套房+双儿童房+岛台厨
设计师人厘米酱
2025-11-12 12:35:23
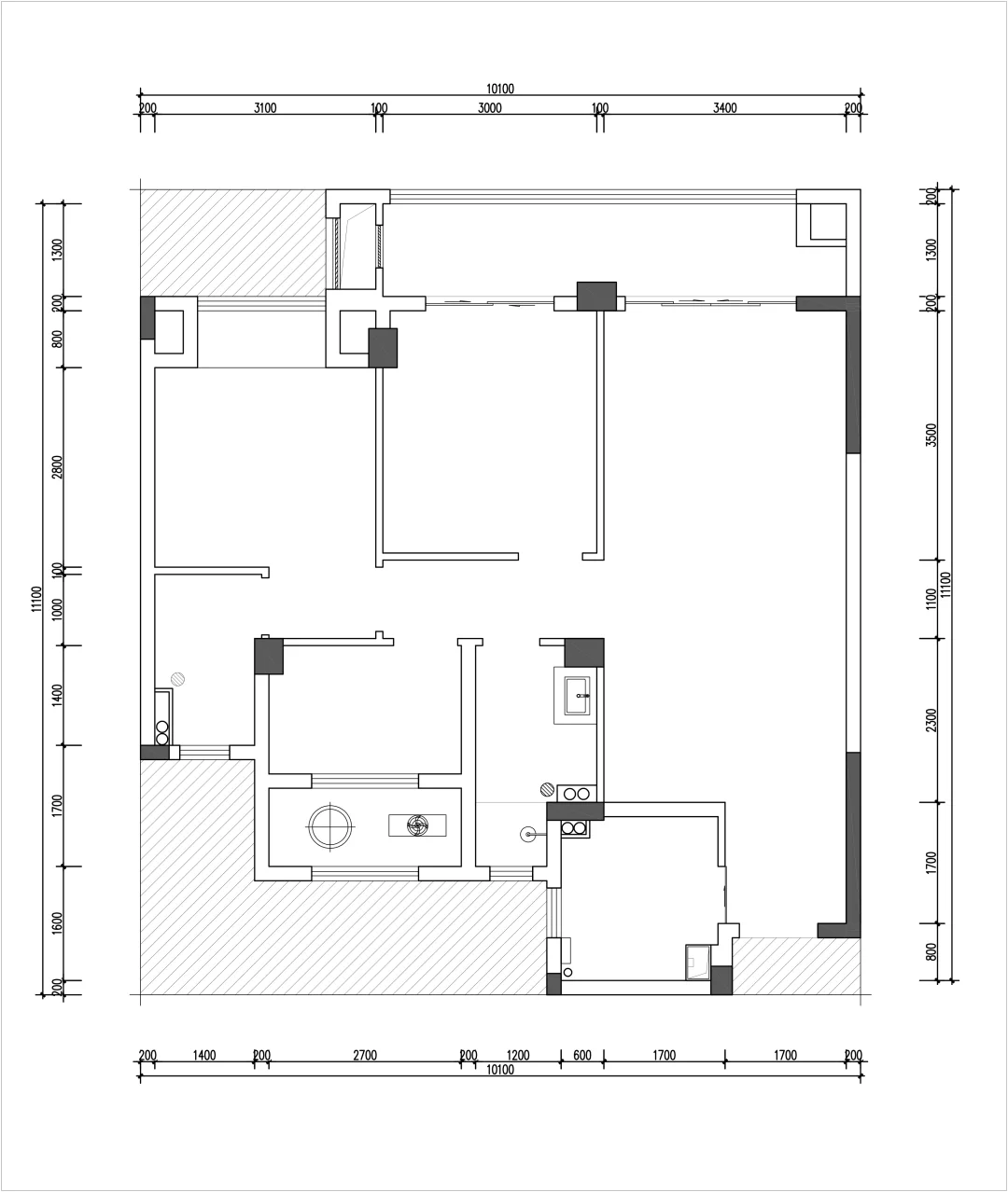
> 88㎡老户型重生记!三居改造成亲子理想家✨ > > ■ **爆改核心亮点** ▼ > ✅ **主卧豪华套房**:砸墙扩容→独立衣帽间+干湿分离卫生间,早起梳妆超顺线! > ✅ **双儿童房独立成长**:书桌+衣柜隐形收纳,二胎家庭刚需👦👧 > ✅ **LDK一体化神操作**:开放式厨房+中岛台=**社交厨房+餐桌+咖啡吧**!做饭带娃两不误☕ > ■ **小户型心机细节** ▼ > ✦ 岛台下嵌洗碗机,释放操作空间
0
阅读:0
设计师人厘米酱
感谢大家的关注
作者最新文章
1
87㎡经典户型改造,想看三分离!
2
82㎡三房一卫经典户型改造方案
3
一个户型四版方案,想做洄游动线,码住喽!
4
想要一个大主卧套间!这个设计师有点厉害
5
第一次买房就买到第四代住宅,超美的阳台
6
两套打通,三个房间改成主卧套间
7
沙发C位观景:我家户型优化,只为这江景
8
传统四叶草户型改造,简单好用!
9
没什么,就觉得这个配色好看,再发一次!
10
砸掉一面墙,换来大横厅,附户型图🔥
热门分类
推荐
热榜
军事
NBA
体育
社会
明星八卦
娱乐
财经
科技
汽车
历史
国际
游戏
动漫
公益
搞笑
商业
互联网
数码
国际足球
房产
家居
时尚
科学探索
职场
育儿
股票
教育
影视
情感
热点
中国军情
武器
中国南海
中国足球
亚洲杯
科比
综合体育
CBA
投资
大咖秀
外汇
创业
风口
SUV
豪车
概念车
优惠
新能源
美国
欧洲
朝日韩
俄罗斯
孕期
街拍
婚姻
正能量
家居
TOP
1
这种卧铺,一年做365天,我也愿意呀
2
农村自建房天花板,没有之一。[赞]
3
“白嫖成功了?”2017年,江苏一男子花了几十万装修开饭店,可是5年后生意正火时
4
洗澡水温很高
5
喜庆的婚房,新娘笑靥如花,幸福满满!💍💕
6
大家会给自己的手机桌面“搞装修”吗?[doge]好奇心观察局
7
自家地里挖出来的,感觉造型很独特,这算不算是风水宝地呀?[???]
8
我敢说,这才是农村自建房设计的天花板,没有之一。
9
做梦都没想到,上个月关门去旅游的回收店老板,昨晚连夜装修新回收店,准备明天开业
10
这要怎么装修[笑着哭]那个设计师给设计一下
家居
最新文章
1
有点帅啊!湖人城市版地板!
2
真没想到租个房还能这么纠结!一对外地小夫妻想租我的毛坯房,一租就是十年,一年一付
3
王诗龄,从小家里装修就很豪华,光这颗大树就充满了无限生机。
4
质量真不咋滴刚过十万公里,4儿子检查一堆小问题,其他都可忽视,这个气门室盖漏油
5
“白嫖成功了?”2017年,江苏一男子花了几十万装修开饭店,可是5年后生意正火时
6
这样的房型,设计者也是绞尽脑汁吧,你觉得怎样?
7
全新设计的摄像头装饰更简洁大气,期待真机
8
洗澡水温很高
9
我的房子挂了两年才卖掉.房子是2018年买的,花了280万加上装修20万
10
泰王后在红地毯上站定的瞬间,将“东方贵气”展现得淋漓尽致……她身着千鸟格纹灰