老涛资讯网
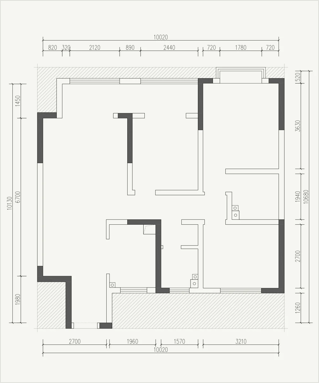
笑死了,不给我做开放式厨房,最后还是做了!
设计师人厘米酱
2025-11-12 12:35:23
户型优化 户型优化设计 空间布局优化 户型改造 开放式厨房 厘米户型优化
0
阅读:2
猜你喜欢
把一个除了年轻好看、几乎一无所有的小伙子,直接拎包入住自己的大别墅,还让他当全职
别墅
寒梅映雪清绝
2025-12-17
喜欢他,亲子乐园,觉得320㎡身上有很多值得我们学习借鉴喜欢欣赏的东西!它聪
书房
里二户型改造
2025-12-17
指尖轻触白衬衫的领角像抚过一页未拆封的信笺衣架的金属勾轻响在纯白的墙面前,
【1点赞】
图韵诗心
2025-12-17
为什么越来越多年轻人喜欢这种毛坯风格的装修呢?因为所呈现出来的效果,真的太有个性
装修
美居研习社
2025-12-17
欧式风格的女主人
【9点赞】
温柔风筝3i
2025-12-16
极简世界地图,装饰性挺好。地图世界地理艺术
绝对伏特加
2025-12-18
风水还是科学?有没有发现一个现象,中国人口密集的大城市,大多
【1点赞】
纯平
幸福感满满8r0W
2025-12-17
1983年的一天深夜,胡连珍将家里的窗帘拉得严严实实,像往常一样打开了收音机,经
收音机
窗帘
点尘看史
2025-12-17
设计师人厘米酱
感谢大家的关注
作者最新文章
1
原来四叶草户型还可以这样改造户型
2
书房设计可以简单,但方案一定要多!
3
这样的户型改造,你见过吗?四叶草户型优化
4
旧房改造—三居室变四居室,加的卧室儿子住
5
全国通用经典户型优化—只有89平方
6
这个老破小有点厉害,30平方四人蜗居
7
还好遇到你!这平平无奇的户型也能这样改
8
四叶草户型改造—我在隔壁给父母买套房
9
迷你精装房改造,全拆了,重新设计
10
你见过四房改两房吗?茶室、书房样样齐全
热门分类
推荐
热榜
军事
NBA
体育
社会
明星八卦
娱乐
财经
科技
汽车
历史
国际
游戏
动漫
公益
搞笑
商业
互联网
数码
国际足球
房产
家居
时尚
科学探索
职场
育儿
股票
教育
影视
情感
热点
中国军情
武器
中国南海
中国足球
亚洲杯
科比
综合体育
CBA
投资
大咖秀
外汇
创业
风口
SUV
豪车
概念车
优惠
新能源
美国
欧洲
朝日韩
俄罗斯
孕期
街拍
婚姻
正能量
家居
TOP
1
有了有了造型室
2
这绝对是自建房的天花板了吧!!
3
完美解决了只有顶楼才会漏水的遗憾?
4
师傅在厨房修水管,女主人站在一旁。
5
终于知道铺这种地砖的意义了。
6
这个地板是有老婆选的?我真无语了?
7
AI浴室自拍
8
上得厅堂,下得厨房。
9
许家印办公室曝光,金碧辉煌,太奢华了。“眼看他起高楼,眼看他宴宾客,眼看他楼
10
天塌了,这房子还有必要装修吗?
家居
最新文章
1
家里挂这个是有什么讲究吗?
2
广东女子装饰新房,直接将她的朋友看呆了,这事还上了新闻,看了她的新房,还
3
你们装修房子的时候工人给你最大的惊喜是什么?看看我家的,师傅说没事,
4
昨天去朋友家串门,内急想去厕所,朋友直接把我领进了她卧室的卫生间,一推门我差点惊
5
人之间的交往一定遵循这八条铁规,切记切记。
6
许家印办公室曝光,金碧辉煌,太奢华了。“眼看他起高楼,眼看他宴宾客,眼看他楼
7
全红婵家的这栋房子真的像烂尾楼,楼面封顶两个多月了,现在还没有装修好,之前说混凝
8
这种家庭条件真的好,非得弄个静音房吗,全屋做隔音不是更好吗?
9
美女展示真丝缎绿色兔子家居服。家居服晨袍
10
红衫凝韵展风姿一袭正红的衣装以简约设计勾勒出雅致美感,乌发如流云垂落,与红