2000年前世界最大都市,历史上最宏伟宫殿,历史上最高木塔,带你走进洛阳汉魏故城博物馆。
博物馆主体建筑以汉魏都城“建中立极”理念为魂,南北中轴线贯穿全馆。
博物馆入口长达88米拱形桥,游客拾级而上时,仿佛穿越到2000年前汉魏朝堂。
东汉帝陵石象,国内最大历史最久,是博物馆的镇馆之宝。
汉魏洛阳故城始建于西周,周武王伐纣后计划在天下之中兴建新都。武王的弟弟周公主持下,在洛阳营建都城,建立了王城和成周两座城池。王城是天子居住的城池,成周驻扎着天子的八师。
东周时期,周平王东迁洛邑,居住在洛阳王城。公元前520年,王子朝争夺天子之位发生动乱,周敬王迁都到成周,成周城又一次扩建。
公元前249年,秦国夺取周天子的领地,设置三川郡。秦始皇的仲父吕不韦封地在成周,他再次扩修洛阳城。
公元前202年,汉高祖刘邦在这里建立西汉,分封功臣,不久入都关中。
公元25年,刘秀定都洛阳,此时的成周城内有南宫和北宫,在城南建设了太学、辟雍、明堂、灵台。
公元220年,魏文帝曹丕定都洛阳,兴建太极殿。太极殿宽约220米,是中国历史上最大的正殿。太极殿的形制被隋唐宋元明清沿用。
公元265年,西晋取代魏,继续定都洛阳。
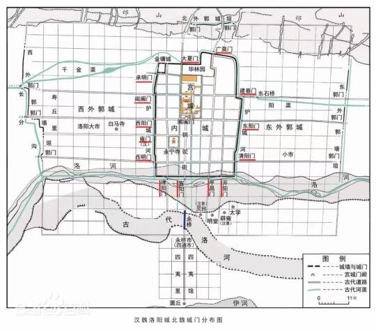
公元494年,北魏孝文帝迁都,对洛阳城进行大规模扩建。洛阳城由宫城、内城、外郭城组成,面积达到100平方公里,是当时世界最大城市。
该城沿用到唐朝初期,长达1600余年,5个朝代在这里建都600多年。
永宁寺塔是北魏洛阳城内标志性建筑,始建于熙平元年(516年),塔高四十九丈,合今约136米,加上塔刹通高约为147米,是中国古代第一高塔、世界古代史上最高大的木构建筑。
1979年,中国科学院考古研究所发掘了永宁寺塔遗址,出土了一批彩绘泥塑造像残件。
其中一件残缺的北魏泥塑佛面造像,收藏在洛阳博物馆,被评为洛阳九大“镇都之宝”,被誉为“东方的蒙娜丽莎”。
东汉开辟丝绸之路直通罗马,班超在洛阳弃笔从戎,经过多年经营,西域50多国全部臣服汉朝。汉和帝封班超为定远侯,死后葬于洛阳邙山之上。
汉和帝、汉桓帝时期,古罗马大派使者至东汉洛阳,朝见皇帝。
曹魏时期,曹植作《洛神赋》,以丰富的想象力塑造了一位美丽绝伦的洛神形象。
精品展,珍宝文物琳琅满目。
除了汉魏故城,洛阳还有夏朝二里头,偃师商城、周王城,隋唐洛阳城,共5座都城遗址。
历史 河南 洛阳 旅游









