2000年前,这里是世界最大都市,面积达100平方公里。
这里有5个朝代600多年建都历史,是汉魏时期丝绸之路东方起点。
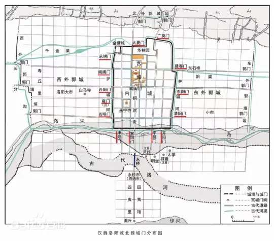
汉魏洛阳故城始建于西周,周武王伐纣建立周朝。弟弟周公在洛阳瀍河两岸,营建了王城和成周两个城池。
公元前520年,周景王去世后,庶长子王子朝在大臣拥护下,在王城自称周天子。晋国军队拥立嫡子姬匄为周敬王,在成周城即位,打败了王子朝。晋国率诸侯扩建城池,东周在这里建都264年。洛阳 河南 历史
公元前249年,秦国在洛阳置三川郡,郡治成周城。秦国封吕不韦为文信侯,封地在成周城。吕不韦再次扩修洛阳城,成周城达到了东西六里、南北九里的规模。
公元前202年,汉高祖刘邦在这里建立西汉,分封功臣,不久入都关中。
公元25年,刘秀定都洛阳,此时的成周城内有南宫和北宫,在城南建设了太学、辟雍、明堂、灵台。汉明帝时,修建了中国第一座官办佛教寺院白马寺。东汉13位皇帝,建都196年。
公元220年,魏文帝曹丕定都洛阳,兴建太极殿。太极殿宽约220米,是中国历史上最大的正殿。
公元265年,西晋取代魏,定都洛阳。
西晋末年,中原汉人大规模南迁,洛阳是客家人的南迁出发地。
公元494年,北魏孝文帝迁都洛阳。公元501年,北魏宣武帝兴建外郭城,洛阳城分为宫城、内城、外郭城,总面积达到约100平方公里的空前规模,是近代以前全球范围内最大的城市。
永宁寺塔是北魏洛阳城标志性建筑,塔高49丈,约136米,是中国古代第一高塔、世界古代史上最高大的木构建筑。
隋炀帝在汉魏洛阳城的西边,兴建隋唐洛阳城,新都洛阳成为隋唐大运河的中心。
隋末农民起义,瓦岗寨李密占据汉魏洛阳城称帝,隋朝大将王世充占据隋朝洛阳城称帝。
这一时期,称为30里地两个皇帝。
汉魏时期,洛阳是丝绸之路的东方起点。
东汉班超在洛阳弃笔从戎,在西域经营31年,西域50多国全部臣服汉朝。
东汉时期丝绸之路直通地中海,古罗马派使者至洛阳,朝见汉和帝、汉桓帝。
西晋太康年间,罗马使者两次来到洛阳。
南北朝时期,丝绸之路因战乱中断。
北魏统一中国北方,波斯使团5次到洛阳。
公元518年,北魏人宋云、惠生由洛阳出发,沿“丝绸之路”西行,拜取佛经。公元522年,两人从天竺回到洛阳,取回大乘经典170部。
唐朝统一天下后,隋唐洛阳城更加兴盛,汉魏洛阳城逐渐废弃。
汉魏洛阳城从西周到唐初,使用长达1600余年,见证了无数历史故事。







珠穆朗玛
洛阳的主要领导都被调整了,什么原因[笑着哭]
汉军北抵瀚海而还
罗斯柴尔德家族商业帝国,确实存在重男轻女的传统,该家族自18世纪起,便遵循“不是儿子就不准参与经营”的原则,明确要求继承人必须为男性,这一传统,在该家族传承中持续数百年,家族创始人梅耶·罗斯柴尔德,将财产分配给五个儿子,后续家族企业,全由男性后代继承,这种制度确保了,家族企业的控制权始终在男性手中,女性成员(包括女儿、儿媳),都被排除在核心决策层之外,该家族明确规定女性不得参与企业经营,包括查看账目、财产清单等核心文件,即使女性成员拥有子女,也需通过男性继承人传递财产,而非直接传承给女儿,这种制度设计强化了男性在家族产业中的主导地位。
汉军北抵瀚海而还
罗斯柴尔德家族商业帝国,曾立下家规,倡导尽可能的家族内部近亲结婚,以确保家族产业的传承,避免财富外流, 这种内部通婚不仅关乎财产,更是一种家族精神的延续,家和万事兴”的理念,在罗斯柴尔德家族的传承中,得到了淋漓尽致的体现,古语:“兄弟齐心,其力断金”,家族的创始人,梅耶.罗斯柴尔德,他留下的遗训是:“亲兄弟团结是无敌的力量,他们分裂则是衰败的起点。”尽管家族生意中曾遭遇无数挑战与危机,正是这份亲兄弟情深、团结协作的精神,让他们的家族,一次又一次的挺过了难关。
红黑骑士
国家已经明确了西安市是古丝绸之路的起点,你们洛阳人非要弄个什么东方起点?你们是什么都要争啊,为了那一点可怜的旅游,真的是无所不用其极啊!