新手学习钢结构劝你看这个三维图解钢结构各构件和做法大全42页,这套资料里面运用大

工程菲加 2024-09-02 17:08:05

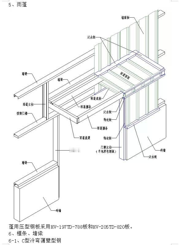
新手学习钢结构劝你看这个三维图解钢结构各构件和做法大全42页,这套资料里面运用大量三维图,从钢结构基本构件图,还有原理说明包含门式刚架的基本形式,点式通风器,彩板推拉门等每一个知识点都是图文结合

0 阅读:0
工程菲加

工程菲加

感谢大家的关注