老涛资讯网
到底谁说小户型不能装极简风的,真绝了😭
琳娜家的小窝家居
2026-02-28 16:48:33
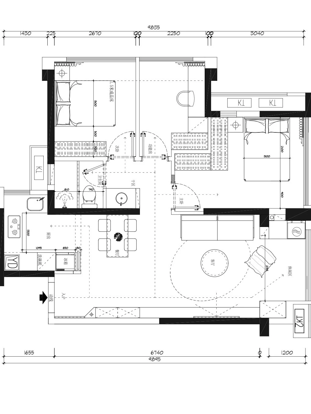
坐标深圳 建面79㎡,套内63㎡,两室改三室(图纸在zui后) 花半年时间装修,把空荡荡的房子变成了家🏠 目光所及,都是我满心喜欢的模样 装修时亲戚朋友说,小户型千万不能用深色 还好我没妥协,坚持自己的喜爱🤩 把巴掌大的房子装成现在舒适的样子 主卧、书房,儿童房,麻雀虽小 五脏俱全✌️ 一家三口住起来太舒服了,结婚真好,有自己的家真好
0
阅读:32
猜你喜欢
刷到图2,能不能夸夸我😳
装修
听白说家居
2026-02-28
划到图二的时候能不能夸夸我………
【1点赞】
装修
客厅
婧婧恋食喵的家
2026-02-28
哈哈哈这个楼梯设计的
青椒
这颗番茄不太熟
2026-02-28
无滤镜的原木风真的没眼看~
【1点赞】
装修
原木风小屋日常
2026-02-28
190㎡大宅美学:现代线条,优雅肌理,治愈日常装修如何营造高级感家居
【1点赞】
装修
装修佳智慧
2026-02-28
2003年冬天,伦敦一个女人在沙发上断了气。电视机没关,此后七百多天,家中的电视
【1点赞】
沙发
惠特妮·休斯顿
惠特妮
史叔
2026-02-28
琳娜家的小窝家居
感谢大家的关注
作者最新文章
1
到底谁说小户型不能装极简风的,真绝了 😭
2
63平,一家三口住真的好幸福💕
3
妈妈说,63平的小房子被我折腾的挺舒服的~
4
买不起大房子,有个63㎡小家也挺好呀~
5
不是样板间,是我拼尽全力装修的dreamhouse
6
63平3房,装成这样已经很哇塞了!!
7
63㎡的小家,一家三口住起来刚刚好💕
8
一家三口住63m² 🏡 ,真的很爽啊~~
9
从图1到图14,越住越幸福 ☺️
10
63㎡三室|房子很小,也是我的dreamhouse
热门分类
推荐
热榜
军事
NBA
体育
社会
明星八卦
娱乐
财经
科技
汽车
历史
国际
游戏
动漫
公益
搞笑
商业
互联网
数码
国际足球
房产
家居
时尚
科学探索
职场
育儿
股票
教育
影视
情感
热点
中国军情
武器
中国南海
中国足球
亚洲杯
科比
综合体育
CBA
投资
大咖秀
外汇
创业
风口
SUV
豪车
概念车
优惠
新能源
美国
欧洲
朝日韩
俄罗斯
孕期
街拍
婚姻
正能量
家居
TOP
1
不懂就问为什么楼梯不走要爬窗口
2
这是啥设计实在看不懂
3
小舅子新居落成,邀我探访。初入室内,误以为踏入垃圾场,细看之下,竟是创意地板,仿
4
这家业主,是什么样的人?
5
2003年冬天,伦敦一个女人在沙发上断了气。电视机没关,此后七百多天,家中的电视
6
这种楼梯住几代人都垮不了。
7
安徽夫妻134㎡的家火了!仅凭一个客厅,这家居氛围太棒了!
8
听说一个最狠的租客,房东找茬不退押金,于是买了200多个鸭蛋,偷偷灌入装修夹层中
9
还得是有钱人,这个沙发比龙椅还霸气。
10
暗夜光束映清辉深邃的暗夜如绒幕般铺展,没有多余的色彩与繁杂的装饰,一道清透
家居
最新文章
1
2003年冬天,伦敦一个女人在沙发上断了气。电视机没关,此后七百多天,家中的电视
2
全网都在羡慕这个新娘不是因为嫁得多风光没有水晶灯,没有红地毯,没有999
3
安徽夫妻134㎡的家火了!仅凭一个客厅,这家居氛围太棒了!
4
新中式旗袍:东方韵味的极致诠释淡红新中式旗袍,是东方美学的温柔具象。六组画
5
这是啥设计实在看不懂
6
暗夜光束映清辉深邃的暗夜如绒幕般铺展,没有多余的色彩与繁杂的装饰,一道清透
7
柔光漫染清宁时干净的浅灰墙面素净无杂,清透的光束斜斜漫过,在墙面上晕出层层
8
天塌了,一度以为家里窗帘私密性绝佳直到昨天归假回来,我忘了关灯下楼买电池抬头看
9
我第一次看见这图的时候,就一个想法:这设计师得喝了多少啊?还是甲方爸爸的审美,
10
春节一回来天塌了呜呜呜呜瓷砖要掉了!(还好没掉,撑到了我回来,万幸)赶紧