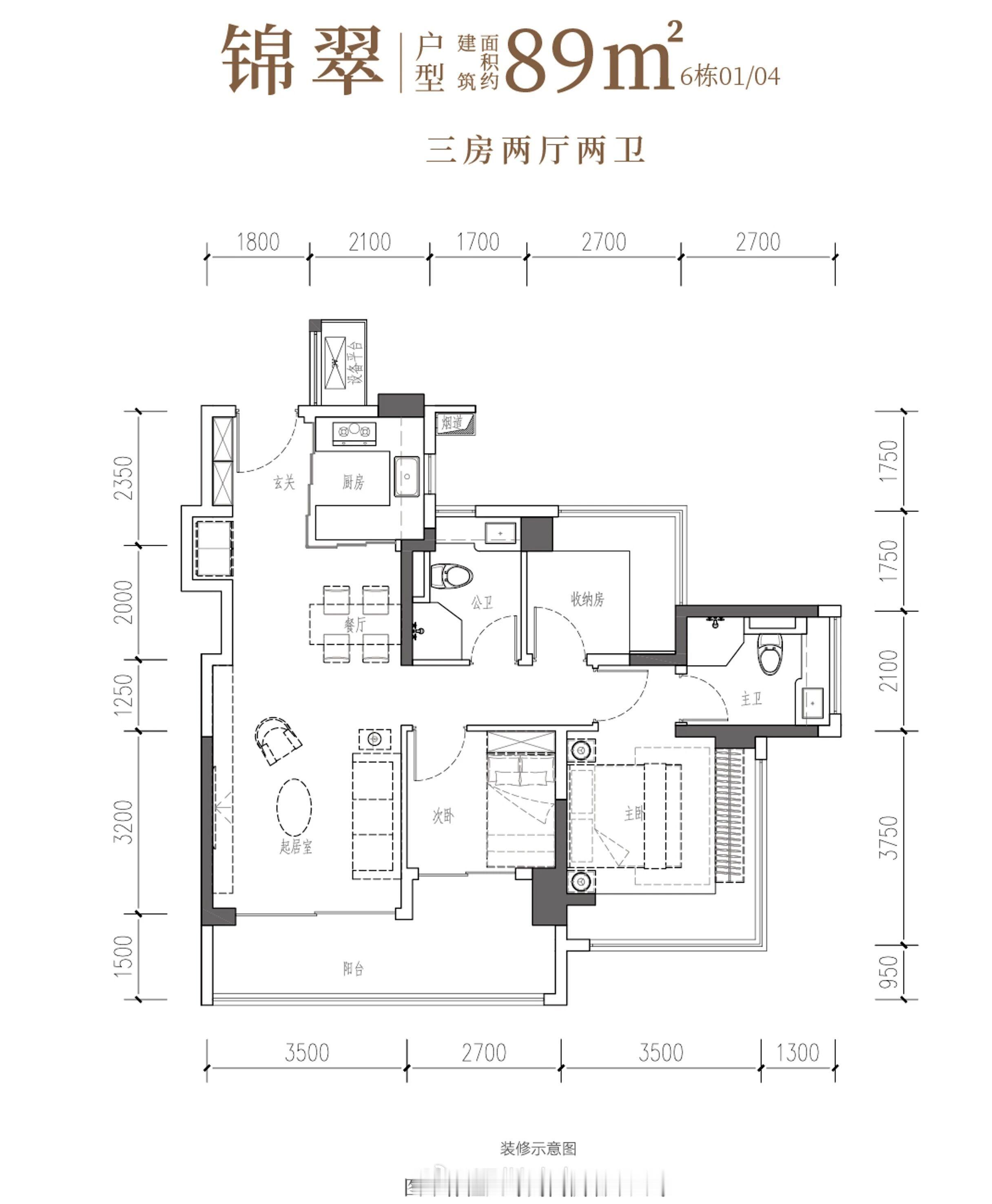
宝安沙井限高80米且容积率3.1的新盘,绿城锦和玉鸣。89㎡3房2卫折后区间单价4.4-4.6万/㎡,折后总价区间393-410万104-107㎡4房2卫,折后单价区间4.62-5万/㎡,折后总价490-530万127㎡-130㎡南北通4房,折后单价4.75-5.1万/㎡,折后总价617-645万,此价格仅限开盘,年内按时签约!价格还算可以,4万多,买的是更好的居住体验,123栋是25层,5栋24层,6栋16层。户型使用率非常高,公摊没那么多,学位也是深圳外国语,适合沙井本地客户购买。缺点就是看宝安书城一侧,视野采光有些遮挡。样板房我也没去看过,开发商拿出些诚意做好品质,这个价格,客户会买单的。深圳




